3 pokoje w nowszym bloku z windą i miejscem postojowym

Poznań, Poznań-Grunwald, Górczyn, Kazimierza Jarochowskiego

650 000 PLN

Numer oferty2956
Typ transakcjiSprzedaż
Cena650 000 PLN
Powierzchnia62.6 m2
Cena za m210 383 PLN / m2
Liczba pokoi3
Piętro2/4
Rok budowy2012
Stan lokalubardzo dobry
Standard wykończeniabardzo dobry
Typ budynkublok
Rynekwtórny
Klatka schodowaczysta
Materiał budowlanycegła
Forma własnościwłasność
Kuchniaaneks
Łazienkaz wc
OknaPCV
Podłogapanele
Parkingmiejsce postojowe
Ogrzewanieco. z własnej kotłowni
Typ Balkonumały
3 pokoje w nowszym bloku z windą i miejscem postojowym (Poznań, Poznań-Grunwald, Górczyn, Kazimierza Jarochowskiego)

Serdecznie zapraszam na prezentację mieszkania 3 pokojowego, położonego na poznańskim Górczynie przy ul. Kazimierza Jarochowskiego.

Nieruchomość znajduje się w budynku z windą, oddanym do użytkowania w 2012 roku.

LOKALIZACJA

Świetna lokalizacja pod względem zakupu zarówno dla rodziny jak i na inwestycję.
W pobliżu znajdują się przepiękne tereny rekreacyjne: park Górczyński oraz park Kasprowicza ( w sezonie letnim otwarty jest odkryty basen ) i jezioro Szachty.
Bardzo dobry dojazd w każdy punkt Poznania, dzięki bliskości linii tramwajowej nr 8, 14, 5 oraz linii autobusowej nr 163, 182, 179, 150, 193.
W najbliższym sąsiedztwie sklep spożywczy "Żabka", sklep mięsny " Bystry", Biedronka, Lidl, Leclerc, Lewiatan, a także szkoła podstawowa, przedszkole i żłobek.


OPIS NIERUCHOMOŚCI

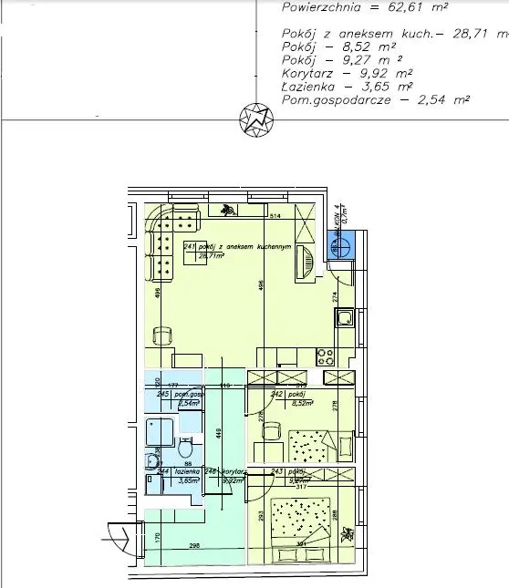
Ustawne mieszkanie 3 pokojowe o powierzchni ok. 62,60 m2 położone jest na trzecim piętrze i składa się z:

- jasnego salonu połączonego z aneksem kuchennym ( ok. 28,7 m2 ) i wyjściem na niewielki balkon,
- dwóch sypialni ( ok. 9,3 m2 i ok. 8,5 m2 ),
- dodatkowej skrytki ( ok. 2,5m2 ),
- korytarza ( ok. 10 m2 ),
- łazienki razem z WC ( ok. 3,65 m2 ).

Aneks kuchenny w zabudowie meblowej i wyposażony w niezbędny sprzęt AGD.
Całe wyposażenie pozostaje w cenie.
Do dyspozycji mieszkańców jest również strych znajdujący się na 5 piętrze, który obecnie użytkowany jest jako suszarnia i pomieszczenie na rowery.

Atutem mieszkania jest również przynależne miejsce postojowe w podziemnej hali garażowej w cenie nieruchomości.

Lokal do dyspozycji od zaraz bez obciążeń hipotecznych i zaległości w opłatach eksploatacyjnych.

Prężnie działająca wspólnota.
Spokojni i uprzejmi sąsiedzi.

Opłaty za media (zimna woda, podgrzanie wody, centralne ogrzewanie) pobierane są ryczałtowo co miesiąc w czynszu, a ich rozliczenie według liczników następuje w cyklach 6 miesięcznych.

Cena nieruchomości 650 000 zł

Lokal sprzedawany wraz z miejscem postojowym w hali garażowej.

Zapraszam na prezentację!

Agent prowadzący:

Anna Najdek
Pośrednik w obrocie nieruchomościami
tel. kont. 883 069 767


Zapewniamy bezpłatną pomoc w uzyskaniu najlepszych warunków kredytowych na rynku.


Powyższy opis ma charakter informacyjny i nie stanowi oferty w rozumieniu KC.
Informacje zawarte w ogłoszeniu, zostały sporządzone na podstawie oględzin oraz danych przekazanych przez właściciela i mogą ulec aktualizacji i nie stanowią oferty określonej w art. 66 i następnych K.C.

Zdjęcia i opisy w tej ofercie objęte są ochroną praw autorskich majątkowych i osobistych, stanowią własność w świetle prawa autorskiego. Wykorzystywanie ich lub rozpowszechnianie bez pisemnej zgody autora, jest naruszeniem praw autorskich i pociąga za sobą odpowiedzialność prawną.


Treść niniejszego ogłoszenia nie stanowi oferty handlowej w rozumieniu Kodeksu Cywilnego.
Oferta wysłana z programu IMO dla pośredników.
Informacje
Domofon Winda Drzwi/okna antywłamaniowe Przyst. dla niepełnosprawnych
Poznań, Poznań-Grunwald, Górczyn, Kazimierza Jarochowskiego

Kontakt