Gotowe do wprowadzenia od zaraz 3 pokoje

Poznań, Poznań-Grunwald, Górczyn, Kazimierza Jarochowskiego

569 000 PLN

Numer oferty2895
Typ transakcjiSprzedaż
Cena569 000 PLN
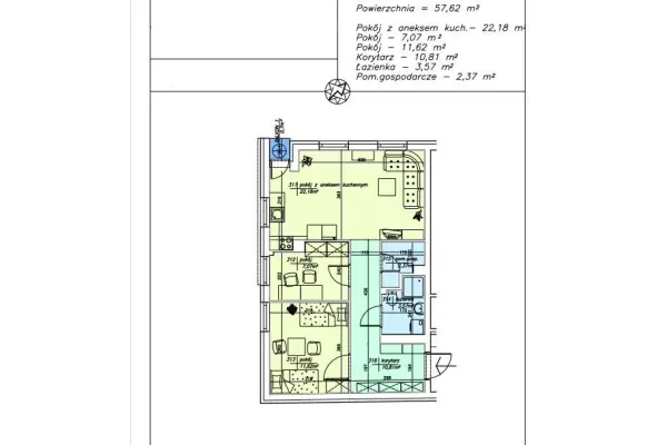
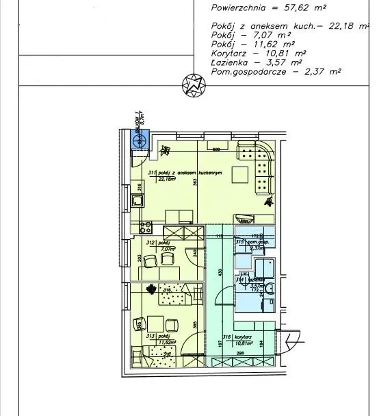
Powierzchnia57.62 m2
Cena za m29 875 PLN / m2
Liczba pokoi3
Piętro3/4
Czynsz PLN550
Rok budowy2012
Stan lokalubardzo dobry
Standard wykończeniabardzo dobry
Typ budynkublok
Rynekwtórny
Klatka schodowaczysta
Materiał budowlanycegła
Forma własnościwłasność
Głośnośćjednostronnie ciche
Kuchniaaneks
Łazienkaz wc
OknaPCV
Podłogapanele
Ścianygładź gipsowa
Łącze internetowekablówka
Parkingmiejsce postojowe
Liczba miejsc parkingowych1
Ogrzewanieco. z własnej kotłowni
Typ Balkonumały
Gotowe do wprowadzenia od zaraz 3 pokoje (Poznań, Poznań-Grunwald, Górczyn, Kazimierza Jarochowskiego)

Serdecznie zapraszam na prezentację mieszkania 3 pokojowego, położonego na poznańskim Górczynie przy ul. Kazimierza Jarochowskiego.

Wynagrodzenie biura pokrywa Właściciel.

Nieruchomość znajduje się w budynku z windą, oddanym do użytkowania w 2012 roku.

LOKALIZACJA
Świetna lokalizacja pod względem zakupu zarówno dla rodziny jak i na inwestycję.
W pobliżu znajdują się przepiękne tereny rekreacyjne: park Górczyński oraz park Kasprowicza ( w sezonie letnim otwarty jest odkryty basen ) i jezioro Szachty.
Bardzo dobry dojazd w każdy punkt Poznania, dzięki bliskości linii tramwajowej nr 8, 14, 5 oraz linii autobusowej nr 163, 182, 179, 150, 193.
W najbliższym sąsiedztwie sklep spożywczy "Żabka", sklep mięsny " Bystry", Biedronka, Lidl, Leclerc, Lewiatan, a także szkoła podstawowa, przedszkole i żłobek.


OPIS NIERUCHOMOŚCI
Ustawne mieszkanie 3 pokojowe o powierzchni ok. 57,62 m2 położone jest na trzecim piętrze i składa się z:

- jasnego salonu połączonego z aneksem kuchennym ( ok. 22,18 m2 ) i wyjściem na niewielki balkon,
- dwóch sypialni ( ok. 11,62 m2 i ok. 7,07 m2 ),
- dodatkowej skrytki ( ok. 2,37 m2 ),
- korytarza ( ok. 10,81 m2 ),
- łazienki razem z WC ( ok. 3,57 m2 ).

Aneks kuchenny w zabudowie meblowej i wyposażony w niezbędny sprzęt AGD ( lodówka w zabudowie, płyta grzewcza, piekarnik, zmywarka).
Dodatkowo w skrytce znajduje się pralka i półka na przetwory.
Całe wyposażenie pozostaje w cenie.
Do dyspozycji mieszkańców jest również strych znajdujący się na 5 piętrze, który obecnie użytkowany jest jako suszarnia i pomieszczenie na rowery.

Atutem mieszkania jest również przynależne miejsce postojowe w podziemnej hali garażowej płatne dodatkowo 10 000 zł.

Lokal do dyspozycji od zaraz bez obciążeń hipotecznych i zaległości w opłatach eksploatacyjnych.

Prężnie działająca wspólnota.
Spokojni i uprzejmi sąsiedzi.

Opłaty za media (zimna woda, podgrzanie wody, centralne ogrzewanie) pobierane są ryczałtowo co miesiąc w czynszu, a ich rozliczenie według liczników następuje w cyklach 6 miesięcznych.
Wysokość czynszu wraz z opłatą za miejsca postojowe wynosi na obecną chwilę 550 zł.

Link do filmu:
https://youtu.be/nCKJoMyOXus


Cena nieruchomości 569 000 zł dla zdecydowanych klientów do niewielkiej negocjacji.

Lokal sprzedawany wraz z miejscem postojowym w hali garażowej.

Oferta dostępna tylko u nas nie szukaj dalej.

Zapraszam na prezentację!

Agent prowadzący:

Anna Najdek
Pośrednik w obrocie nieruchomościami
tel. kont. 883 069 767

lub

Alicja Mazurczuk
Specjalista ds. nieruchomości
tel. 531 586 740.


Zapewniamy bezpłatną pomoc w uzyskaniu najlepszych warunków kredytowych na rynku.

Powyższy opis ma charakter informacyjny i nie stanowi oferty w rozumieniu KC.
Informacje zawarte w ogłoszeniu, zostały sporządzone na podstawie oględzin oraz danych przekazanych przez właściciela i mogą ulec aktualizacji i nie stanowią oferty określonej w art. 66 i następnych K.C.


Treść niniejszego ogłoszenia nie stanowi oferty handlowej w rozumieniu Kodeksu Cywilnego.
Oferta wysłana z programu IMO dla pośredników.
Informacje
Domofon Winda Drzwi/okna antywłamaniowe Przyst. dla niepełnosprawnych
Poznań, Poznań-Grunwald, Górczyn, Kazimierza Jarochowskiego
Film

Kontakt