Słoneczne 2 pokoje na os. Słowiańskim z widokiem na zieleń

Poznań, Poznań-Stare Miasto, Winogrady, os. Słowiańskie

349 000 PLN

Numer oferty2693
Typ transakcjiSprzedaż
Cena349 000 PLN
Powierzchnia42 m2
Cena za m28 310 PLN / m2
Liczba pokoi2
Piętro4/4
Czynsz590 PLN
Rok budowy1978
Stan lokaludobry
Standard wykończeniadobry
Typ budynkublok
Klatka schodowaczysta
Rynekwtórny
Materiał budowlanywielka płyta
Forma własnościspółdzielcze własnościowe
Głośnośćjednostronnie ciche
Kuchniawidna
Łazienkaz wc
OknaPCV
Podłogapanele
Parkingprzy ulicy
Ogrzewaniemiejskie
Typ Balkonuloggia
Słoneczne 2 pokoje na os. Słowiańskim z widokiem na zieleń (Poznań, Poznań-Stare Miasto, Winogrady, os. Słowiańskie)

Serdecznie zapraszam na prezentację 2 pokojowego mieszkania, położonego na poznańskich Winogradach na os. Słowiańskim.

Nieruchomość znajduje się na czwartym piętrze w niskim, ocieplonym bloku z końca lat 70 tych.

LOKALIZACJA

Winogrady to niewątpliwie jedna z lepszych lokalizacji pod względem bliskości terenów zielonych jak i szybkiej komunikacji.
Bardzo dobry dojazd w każdy punkt Poznania, dzięki bliskości linii autobusowej i szybkiej linii tramwajowej PST, co zapewnia bezproblemowe funkcjonowanie całej rodzinie.
Przepiękne tereny rekreacyjne w parku Cytadela, a także w parku Sołackim, idealne na wypoczynek od codziennego miejskiego zgiełku oraz dla osób prowadzących sportowy tryb życia.
W sąsiedztwie znajdują się sklepy: Lidli, Biedronka i liczne sklepy osiedlowe.
W niedalekiej odległości znajdują się uczelnie: Uniwersytet Adama Mickiewicza na Morasku, Uniwersytet Ekonomiczny oraz Uniwersytet Przyrodniczy.


OPIS NIERUCHOMOŚCI

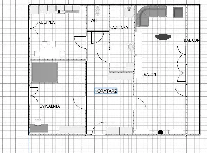
Mieszkanie składa się z:

- salonu z wyjściem na balkon,
- sypialni,
- osobnej jasnej i ustawnej kuchni,
- korytarza,
- łazienki oraz WC.

Okna PCV.
Na podłogach położone zostały panele, mozaika parkietowa oraz wykładzina.
Kuchnia umeblowana i wyposażona w podstawowy sprzęt AGD. Łazienka z prysznicem w płytkach. Na korytarzu znajduje się pojemna szafa typu " Komandor ". Drzwi wejściowe antywłamaniowe. Spokojni i uprzejmi sąsiedzi.


Forma własności: własnościowo - spółdzielcze bez KW ( jest możliwość założenia ).
Wolne do uzgodnienia.
Miejsca postojowe ogólnie dostępne.
Do mieszkania przynależy piwnica.

Link do filmu:
https://www.youtube.com/watch?v=E1ZbBHSG9uE


Cena nieruchomości 349 000 zł

Zapraszam na prezentację WARTO!

Agent prowadzący:

Anna Najdek
Pośrednik w obrocie nieruchomościami
tel. kont. 883 069 767

lub

Alicja Mazurczuk
Specjalista ds. nieruchomości
tel. 531 586 740.

Zapewniamy bezpłatną pomoc w uzyskaniu najlepszych warunków kredytowych na rynku.


Powyższy opis ma charakter informacyjny i nie stanowi oferty w rozumieniu KC.
Informacje zawarte w ogłoszeniu, zostały sporządzone na podstawie oględzin oraz danych przekazanych przez właściciela i mogą ulec aktualizacji i nie stanowią oferty określonej w art. 66 i następnych K.C.

Zdjęcia i opisy w tej ofercie objęte są ochroną praw autorskich majątkowych i osobistych, stanowią własność w świetle prawa autorskiego. Wykorzystywanie ich lub rozpowszechnianie bez pisemnej zgody autora, jest naruszeniem praw autorskich i pociąga za sobą odpowiedzialność prawną.


Treść niniejszego ogłoszenia nie stanowi oferty handlowej w rozumieniu Kodeksu Cywilnego.
Oferta wysłana z programu IMO dla pośredników.
Informacje
Piwnica Domofon
Poznań, Poznań-Stare Miasto, Winogrady, os. Słowiańskie
Film

Kontakt