Wynajmij nieruchomość w dobrej cenie i urządź ją po swojemu

Poznań, Poznań-Jeżyce, Jeżyce, Zwierzyniecka

1 000 PLN

Numer oferty2948
Typ transakcjiWynajem
Cena1 000 PLN
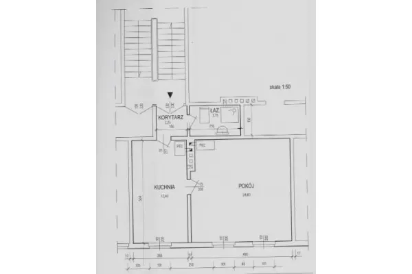
Powierzchnia41 m2
Cena za m224 PLN / m2
Liczba pomieszczeń2
Piętro2/4
Czynsz0 PLN
Stan lokaludo remontu
Standard wykończeniainny
Typ budynkukamienica
Klatka schodowaczysta
Materiał budowlanycegła
Kaucja1 000 PLN
Forma własnościwłasność
Głośnośćjednostronnie ciche
Kuchniawidna
Łazienkaz wc
Oknadrewniane stare
Podłogapanele
Ścianyinny
Łącze internetoweświatłowód
Parkingprzy ulicy
Ogrzewanieelektryczne
Typ Balkonubrak
Wynajmij nieruchomość w dobrej cenie i urządź ją po swojemu (Poznań, Poznań-Jeżyce, Jeżyce, Zwierzyniecka)

Polecamy do wynajęcia nieruchomość do własnej aranżacji ( stąd obniżona opłata za najem ), położoną w świetnej lokalizacji na poznańskich Jeżycach przy ul. Zwierzynieckiej.

Lokal o powierzchni 41m2, usytuowany jest na drugim piętrze w kamienicy.

Nieruchomość również nadaje się na cele biurowe.

Mieszkanie składa się z dwóch pomieszczeń oraz łazienki razem z WC.
Zrobiona została instalacja elektryczna i ogrzewanie panelowe.
Świetna lokalizacja, a dzięki linii tramwajowej można z łatwością dostać się w każdy punkt Poznania.
W pobliżu liczne sklepy spożywcze oraz punkty usługowe.
Miejsca postojowe ogólnie dostępne.

WOLNE OD ZARAZ.
KLUCZE W BIURZE.

Cena najmu 1000 zł
Dodatkowo opłaty za media: woda, prąd, wywóz śmieci.
Kaucja 1000 zł.

Możliwość wynajmu zarówno osobą uczącym się, pracującym jak i rodzinie ( najem instytucjonalny ).
Biuro pobiera wynagrodzenie od Najemcy.

Zapraszam na prezentację!

Agent prowadzący:

Anna Najdek
Pośrednik w obrocie nieruchomościami
tel. kont. 883 069 767


Powyższy opis ma charakter informacyjny i nie stanowi oferty w rozumieniu KC.
Informacje zawarte w ogłoszeniu, zostały sporządzone na podstawie oględzin oraz danych przekazanych przez właściciela i mogą ulec aktualizacji i nie stanowią oferty określonej w art. 66 i następnych K.C.

Zdjęcia i opisy w tej ofercie objęte są ochroną praw autorskich majątkowych i osobistych, stanowią własność w świetle prawa autorskiego. Wykorzystywanie ich lub rozpowszechnianie bez pisemnej zgody autora, jest naruszeniem praw autorskich i pociąga za sobą odpowiedzialność prawną.


Treść niniejszego ogłoszenia nie stanowi oferty handlowej w rozumieniu Kodeksu Cywilnego.
Oferta wysłana z programu IMO dla pośredników.
Informacje
Na biuro Domofon
Poznań, Poznań-Jeżyce, Jeżyce, Zwierzyniecka

Kontakt